Po – Pá: 9:30 – 18:00
0
Košík
0
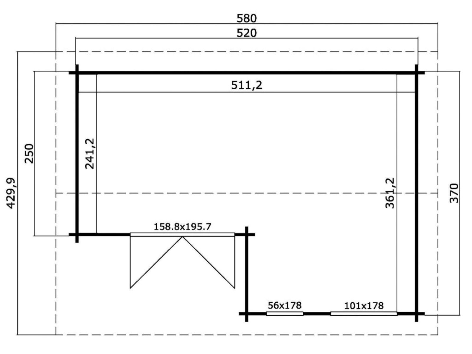
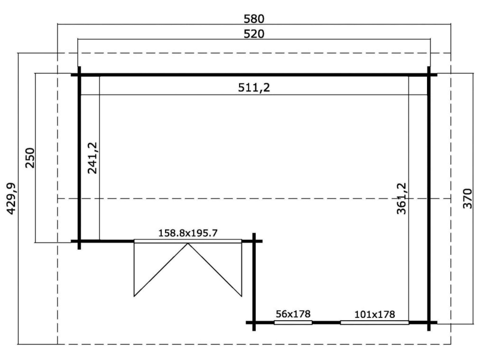
Zahradní domek s terasou BRIGHTON-44 Lasita 520 x 370 cm, 18,46 m²
Kč 169 000 Kč 105 800
(včetně DPH)
Kč 169 000 Kč 105 800
(včetně DPH)
+ Přidat příslušenství
AKCE
Zahradní domek s terasou BRIGHTON-44 Lasita 520 x 370 cm, 18,46 m²

  • materiál: severský smrk
  • síla materiálu: 44 mm
  • rozměr: 520 x 370 cm
  • s podlahou
  • Skladem

SKLADEM, DOPRAVA ZDARMA
Zahradní domek s terasou BRIGHTON-44 Lasita 520 x 370 cm, 18,46 m²

Brighton je prostorný roubený zahradní domek s plně prosklenými dvojitými dveřmi, dvoukřídlým a jednokřídlým oknem otevíratelnými dovnitř, které poskytují dostatek přirozeného světla. Díky tomu se dá využít pro domácí kancelář, letní byt nebo ateliér.

Síla stěn 44  mm /neimpregnované smrkové dřevo/ K DOSTÁNÍ I VE VARIANTĚ 70 mm

Podlaha: palubky 18 x 90 mm (součástí balení)

Zahradní domek má přírodní barvu bez jakékoliv povrchové úpravy a je připraven k dalším nátěrům a impregnacím. Dodáváme jako stavebnici v rozloženém stavu. Součástí dodávky je kompletní kování a podlaha, okna i dveře jsou vyplněny dvojsklem.

Zahradní tiny house je vyroben ze dřeva severského smrku o tloušťce 44 mm (k dostání i ve variantě 70 mm).

Dveře 1x 1580 x 2000 mm /dvoukřídlé dveře, s dvojitým sklem/
Okno 1x 552 x 1729 mm /otvíratelné dovnitř, s dvojitým sklem/
          1x 1100 x 1729 mm /otevíratelné dovnitř, s dvojitým sklem/ 

DOPRAVA A MONTÁŽ PO CELÉ ČR 

Součástí dodávky nejsou střešní krytiny, barvy a laky. Ceny zahradních domků jsou uvedeny bez montáže a dopravy.

Podrobnější informace ke každému modelu naleznete v přiloženém technickém výkresu 

Širší nabídku s podrobnostmi k jednotlivým domkům Lasita Maja najdete v katalogu ⇒ zde.

Radi Vám poskytneme další informace o zvoleném domku.

Skoro u všech zahradních domků je možné během montáže zrcadlově zaměnit levou stěnu za pravou kvůli umístění oken.

Fotografie jsou pouze orientační. Před nákupem ověřte, že produkt má požadované vlastnosti dle technického výkresu. Snažíme se o maximální přesnost fotografií, bohužel nemůžeme vždy zaručit jejich 100% správnost.

Montáž: vypočítává se individuálně s ohledem na vzdálenost, model domku apod. Rádi pro vás uděláme cenovou nabídku!

Základy pro zahradní domky/chatky naleznete ZDE 

Technické informace
Montážní návody
  Stáhnout soubor
  Plocha domku   18,46 m2
  Vnější rozměry   520 x 370 cm
  Nejvyšší bod stropu   241,81 cm
  Výška stěn   204 cm
  Plocha střechy   25,52 m2
  Rozměr balené palety 1   580 x 114 x 79 cm, 1650 kg
  Rozměr balené palety 2   200 x 114 x 42 cm, 210 kg
Příslušenství
Impregnace Více
Lazury na dřevo Více
Střešní krytina šindel Více
Terasový olej Více
Naše výhody
HLAVNÍ PŘEDNOSTI ZAHRADNÍCH DOMKŮ ŘADY SOTRA:
  • Nejlevnější srubové zahradní domky a chatky v ČR! Nízká cena při zachování skvělé kvality
  • KVALITNÍ MATERIÁLY A KOMPLETNÍ VÝBAVA Všechny naše dřevěné zahradní domky, domky na nářadí a chaty jsou vyrobené z vysušených palubkových desek ze severskyho dřeva, o tloušťce 34 a 44 mm
  • SKLADOVÁ DOSTUPNOST Držíme stálou skladovou dostupnost nejprodávanějších chatek v našem pražském skladu
  • DOPRAVA PO CELÉ ČR A SLOVENSKU! Prodáváme dřevěné srubové zahradní domky a chaty po celé České a Slovenské republice.
Doprava a montáž
DOPRAVA A MONTÁŽ PO CELÉ ČR Montážní a dopravní služby zajišťujeme prostřednictvím externích partnerů.
ceník dopravy
Stáhnout soubor
Přijďte si k nám prohlédnout vzorové domky na adrese Hlavní 128, 251 01 Březí u Říčan